Description
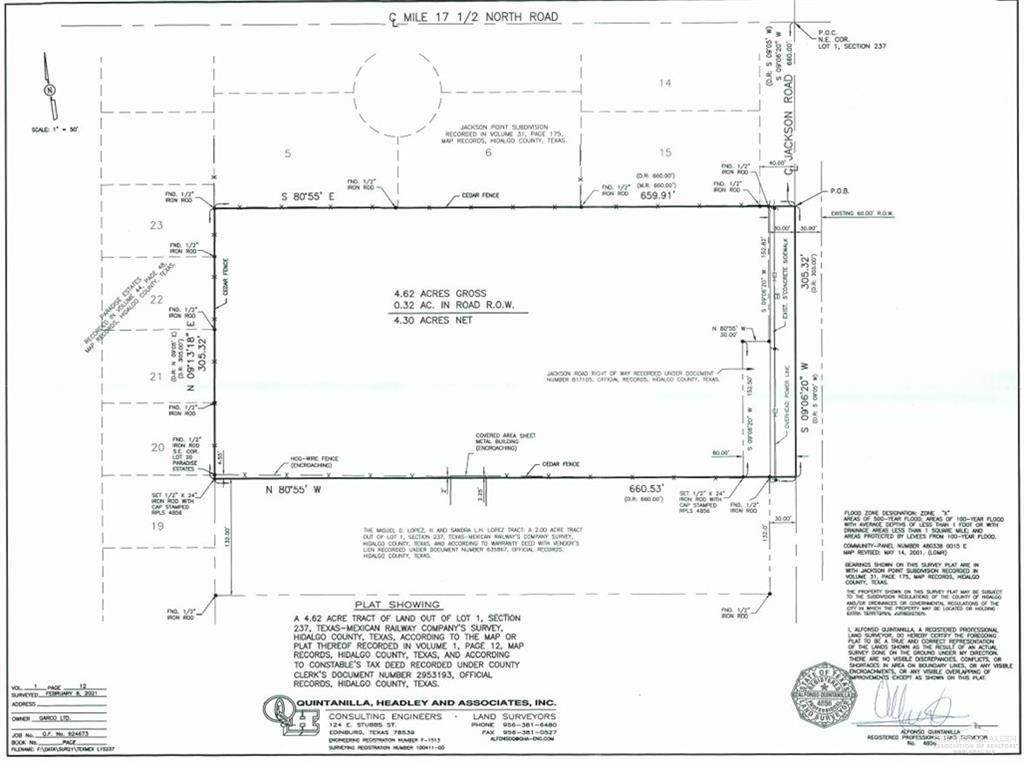
Want to build apartments?????? This property is zoned MULTI FAMILY and is ready to go! Incredible opportunity to own acreage in the heart of Edinburg to build your own ranchito or dream estate. Property is ideally located just minutes from the university, Highway 107 and all the conveniences that the city has to offer, yet large enough to be your own private sanctuary or possible subdevelopment, the possibilities are truly endless. There is a large Multi-Family development to the West and Residential Subdivision to the North of the subject.
-
0BEDS
-
4.52ACRES
-
0BATHS
-
01/2 BATHS
School Information
Description
Want to build apartments?????? This property is zoned MULTI FAMILY and is ready to go! Incredible opportunity to own acreage in the heart of Edinburg to build your own ranchito or dream estate. Property is ideally located just minutes from the university, Highway 107 and all the conveniences that the city has to offer, yet large enough to be your own private sanctuary or possible subdevelopment, the possibilities are truly endless. There is a large Multi-Family development to the West and Residential Subdivision to the North of the subject.
IDX information is provided exclusively for consumers' personal, non-commercial use and may not be used for any purpose other than to identify prospective properties consumers may be interested in purchasing. Data is deemed reliable but is not guaranteed accurate by the MLS or Fox Real Estate Pros. Data last updated: 2025-11-16T12:16:36.81.
