Description
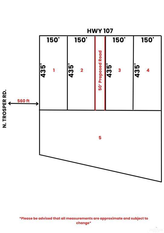
Vacant unimproved 1.5ac tract of land on the South side of West Highway 107 & just East of Trosper road. Walmart Real Estate Business Trust owns the 7.24ac two properties East of subject. *Disclaimer: This parcel is part of a larger 15-acre tract of land. Additional acreage may be available for purchase. This is just 1 of 4 one and a half commercial tracts of land that are available for sale.*
-
0BEDS
-
1.5ACRES
-
0BATHS
-
01/2 BATHS
School Information
Description
Vacant unimproved 1.5ac tract of land on the South side of West Highway 107 & just East of Trosper road. Walmart Real Estate Business Trust owns the 7.24ac two properties East of subject. *Disclaimer: This parcel is part of a larger 15-acre tract of land. Additional acreage may be available for purchase. This is just 1 of 4 one and a half commercial tracts of land that are available for sale.*
IDX information is provided exclusively for consumers' personal, non-commercial use and may not be used for any purpose other than to identify prospective properties consumers may be interested in purchasing. Data is deemed reliable but is not guaranteed accurate by the MLS or Fox Real Estate Pros. Data last updated: 2026-01-21T07:16:52.333.
